×

32-34 Bradford Street and 2 Bradford Lane, Walsall, West Midlands, WS1 3QA

  • Unconditional Online Auction Sale
  • Guide Price * : £260,000 Plus fees

Loading the bidding panel...

For sale by Unconditional Online Auction.

  • An imposing vacant freehold row of three terrace properties
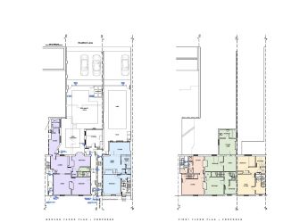
  • Planning permission for a residential conversion
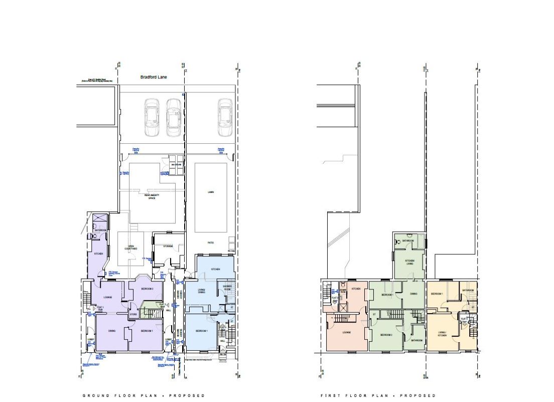
  • Planning ref 19/0122 for five apartments
  • Considered suitable for a variety of alternative uses
  • Off road parking for 10+ automobiles
  • EPC Ratings: 32 Exempt, 33 Exempt, 34 - C

Property Description

For sale by Unconditional Online Auction.


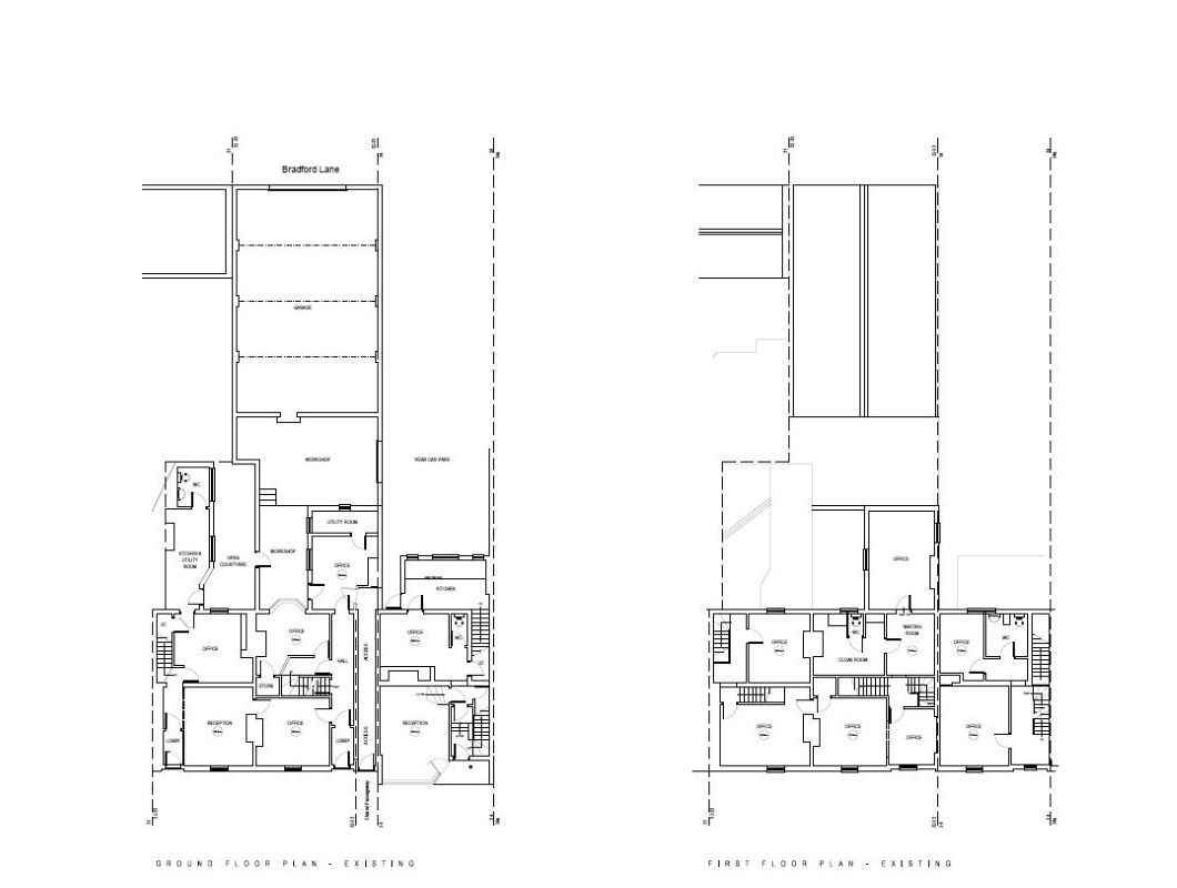
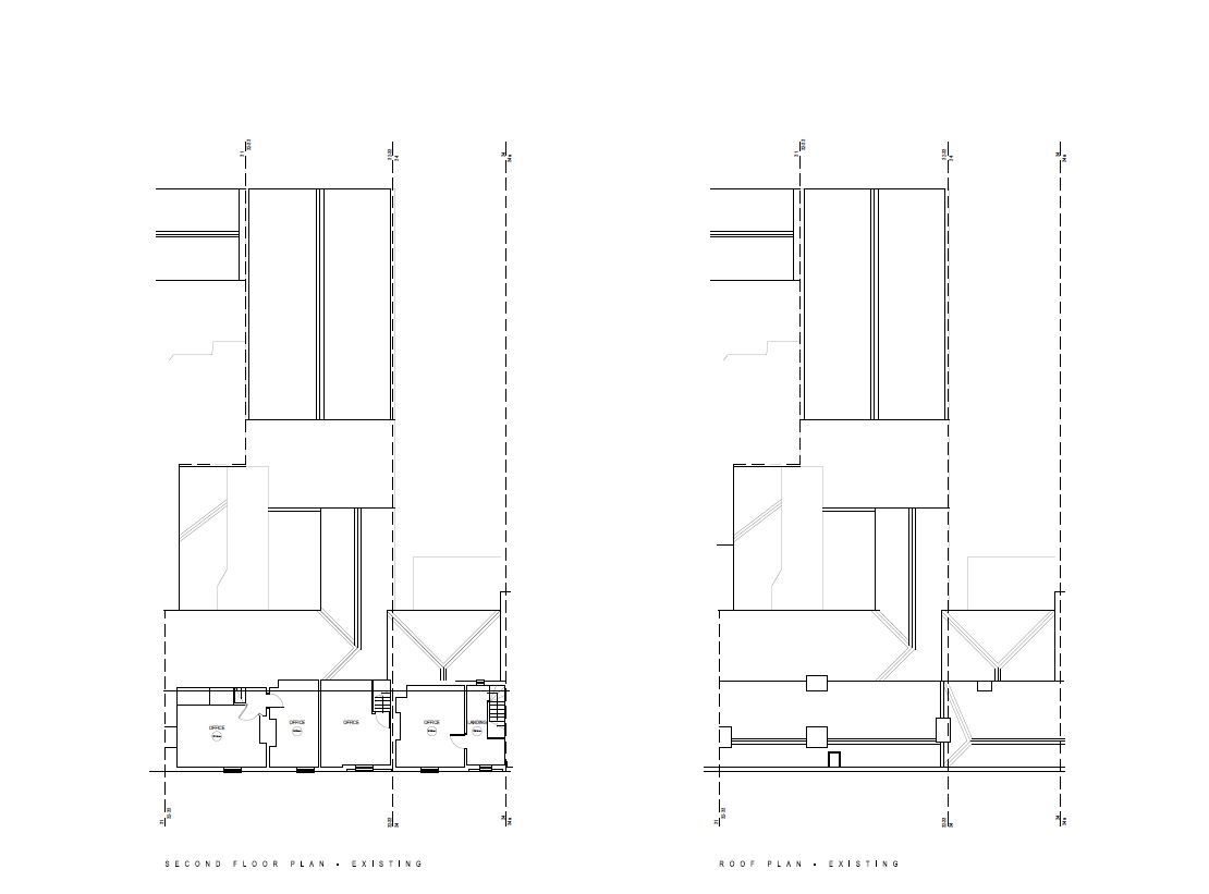
An imposing vacant freehold row of three terrace properties of period offices together with a rear workshop. Having the benefit of planning permission for a residential conversion but also considered suitable for a variety of alternative uses including medical, educational, day nursery and religious subject to obtaining the appropriate planning permission.

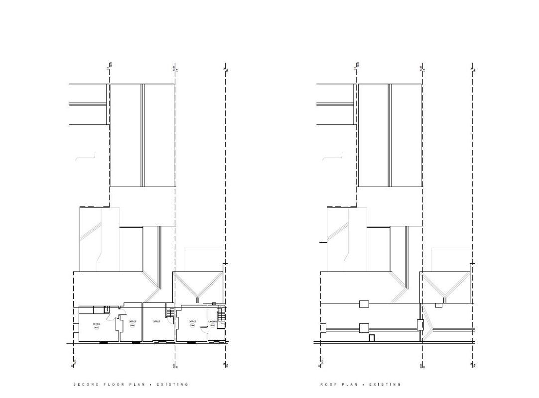
An imposing three storey terrace of office premises with rendered front elevations surmounted by a pitched tile clad roof and set behind a parapet wall.

We are advised that numbers 32 and 33 are Grade II Listed.

The main property provides flexible space, considered suitable for a variety of alternative uses including residential, refurbishment for a continuation for office use, educational, medical, religious or day nursery, subject to obtaining the necessary planning consents. It should be noted that parts of the building are in need of repair and full modernisation.
In addition the sale also includes 2 Bradford Lane situated to the rear of the main building this comprises a separate brick built workshop/industrial unit with roller shutter access directly from Bradford Lane and provides secure parking. We understand that the property has been in the same family ownership since the mid 1950s.

Accomodation: 32-34 Bradford Street: NIA approximately 3,655 sq.ft. - 339.58sqm.
2 Bradford Lane: Approx 1,016 sq.ft- 94.43sqm. Please note Bradford Lane is registered as Land on the North West side of Bradford Lane.
Location: The property occupies a prominent frontage to the eastern side of Bradford Street lying between the junctions of Caldmore Road and Vicarage Place within Walsall town centre and being within a short walk of the main retail core. Within the immediate vicinity there is a good mix of professional offices, residential, restaurant and other commercial uses. Walsall is centrally located approximately 9 miles north west of Birmingham, 7 miles east of Wolverhampton and 9 miles from Lichfield.
Planning: Planning permission was granted on 28th June 2022 by Walsall Council application number 19/0122. For a proposed change of use and conversion of existing offices to five apartments comprising two 2 bedroom and one 3 bedroom self contained apartments in 32 and 33 Bradford Street and one 1 bedroom and one 2 bedroom self contained apartments in 34 Bradford Street. Removal of rear workshop and the creation of car parking via Bradford Lane. A copy of the planning application and proposed plans will be included in the legal pack.
Note Please be advised that the auctioneers have not personally inspected the property. Prospective buyers are advised to make a viewing enquiry and any other necessary independent enquiries before placing their bid, as this will be binding.
Draft Sales Details These sales details are awaiting vendor approval.

Tenure: Freehold

EPC Rating: 32 Exempt, 33 Exempt, 34 - C

Terms:
Auction Details:

The sale of this property will take place on the stated date by way of Timed Auction and is being sold as Unconditional with Fixed Fee (England and Wales).

Binding contracts of sale will be exchanged at the point of sale.

All sales are subject to SDL Property Auctions’ Buyers Terms.

Auction Deposit and Fees:

The following deposits and non- refundable auctioneer’s fee apply:

• 10% deposit (subject to a minimum of £5,000)
• Buyer’s Fee of £1074 inc. VAT

The Buyer’s Fee does not contribute to the purchase price and will be considered as part of the chargeable consideration for the property in the calculation of stamp duty liability.

There may be additional fees listed in the Special Conditions of Sale, which will be available to view within the Legal Pack. You must read the Legal Pack carefully before bidding.

Additional Information:

For full details about all auction methods and sale types please refer to the Auction Conduct Guide which can be viewed on the SDL Property Auctions’ home page.

This guide includes details on the auction registration process, your payment obligations and how to view the Legal Pack.

Guide Price & Reserve Price

Each property sold is subject to a Reserve Price. The Reserve Price will be within + or – 10% of the Guide Price. The Guide Price is issued solely as a guide so that a buyer can consider whether or not to pursue their interest. A full definition can be found within the Buyers Terms.

Useful links

Enquiry

Submit an enquiry and someone will be in contact shortly.

 
*  
*  
*
*
*

Privacy Notice

When you have read the below sections, the Submit button will appear at the bottom of the form for you to complete your entry.

SDL Property Auctions only collects basic personal data about you which does not include any special types of information or location-based information. SDL Property Auctions is a trading name of SDL Auctions Limited.

We collect basic contact details from you so that we can respond to your enquiry. We process your data in this way based on our legitimate business interests in promoting our services to you, further to you indicating your interest. All the personal data we process is processed by our staff in the UK. You have the right to object to processing of your personal data at any time. To do this, please contact dataprotection@sdlauctions.co.uk.

Your submitted data will not be shared outside of SDL Property Auctions, subject to our Privacy Policy which you may find on our website.

We will store your data for six years, after which it will be securely destroyed. If you would no longer like us to process your data at any time, you have the right to object to processing of your data. Please contact dataprotection@sdlauctions.co.uk.

You have the right to object to the processing of your data. You also have the right to request access to your data at any time. You have the right to rectification and/or erasure of personal data or restriction of processing. If you wish to raise a complaint on how we have handled your personal data, you can contact us to have the matter investigated at dataprotection@sdlauctions.co.uk. If you are not satisfied with our response or believe we are processing your personal data not in accordance with the law, you can complain to the Information Commissioner’s Office https://ico.org.uk.

By submitting this enquiry form, you acknowledge that you have read and understood the above privacy notice and consent to its terms.