MyEasyMove

1A Edward Street, Stone, Staffordshire, ST15 8HN

  • Unconditional Online Auction Sale
  • Guide Price * : £140,000 Plus fees

Loading the bidding panel...

For sale by Unconditional Online Auction.
On behalf of James Du Pavey - Stone

  • Commercial End terrace property located in the heart of Stone.
  • Close to local amenities
  • EPC Rating: D

Property Description

For sale by Unconditional Online Auction.
On behalf of James Du Pavey - Stone

DRAFT DETAILS AWAITING VENDOR APPROVAL

Commercial end terrace property located in the heart of Stone.

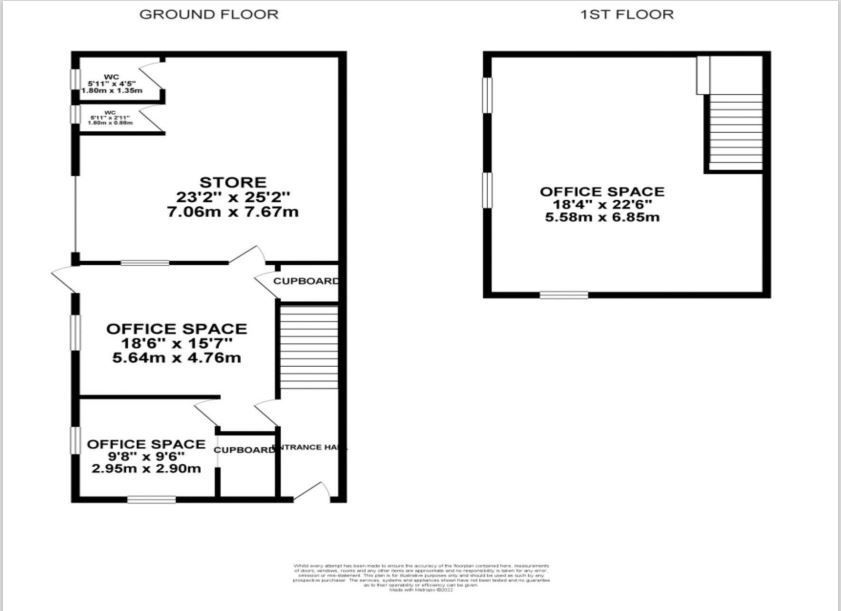
This two storey property features two ground floor office spaces, plenty of storage and a vast store/warehouse with vehicle access. Upstairs is a further office space with several windows allowing for lots of light to flood in.

Close to plenty of great shops, bars and restaurants, not to mention the fantastic Stonefield Park is opposite and with great commuter links and the train station also close by.

All offered with on road parking to the front and side .

Location Leave Stone Town Centre via Radford Street and turn left at the traffic signals onto Old Road. Turn left onto Albert Street then right onto Edward Street. The property can be found as indicated by our for sale board.
Floor Plans Please note that floor plans are provided to give an overall impression of the
accommodation offered by the property. They are not to be relied upon as a true,
scaled and precise representation
Development of land where planning permission needed May be suitable for alternative uses, subject to obtaining the necessary consents. Prospective buyers must make all necessary independent enquiries in this respect for their specific, intended use prior to placing their bid, as this will be binding.
Where we have not inspected Please be advised that whilst our partner agent has conducted an inspection, the auctioneers have not personally inspected the property. Prospective buyers are advised to make a viewing enquiry and any other necessary independent enquiries before placing their bid, as this will be binding.

Tenure: Freehold

EPC Rating: D

Terms:
Auction Details:

The sale of this property will take place on the stated date by way of Timed Auction and is being sold as Unconditional with Variable Fee (England and Wales).

Binding contracts of sale will be exchanged at the point of sale.

All sales are subject to SDL Property Auctions’ Buyers Terms.

Auction Deposit and Fees:

The following deposits and non- refundable auctioneer’s fees apply:

• 5% deposit (subject to a minimum of £5,000)
• Buyer’s Fee of 4.8% of the purchase price for properties sold for up to £250,000, or 3.6% of the purchase price for properties sold for over £250,000 (in all cases, subject to a minimum of £6,000 inc. VAT). For worked examples please refer to the Auction Conduct Guide.

The Buyer’s Fee does not contribute to the purchase price and will be considered as part of the chargeable consideration for the property in the calculation of stamp duty liability.

There may be additional fees listed in the Special Conditions of Sale, which will be available to view within the Legal Pack. You must read the Legal Pack carefully before bidding.

Additional Information:

For full details about all auction methods and sale types please refer to the Auction Conduct Guide which can be viewed on the SDL Property Auctions’ home page.

This guide includes details on the auction registration process, your payment obligations and how to view the Legal Pack.

Guide Price & Reserve Price:

Each property sold is subject to a Reserve Price. The Reserve Price will be within + or – 10% of the Guide Price. The Guide Price is issued solely as a guide so that a buyer can consider whether or not to pursue their interest. A full definition can be found within the Buyers Terms.

Useful links

Enquiry

Submit an enquiry and someone will be in contact shortly.

 
*  
*  
*
*
*

Privacy Notice

When you have read the below sections, the Submit button will appear at the bottom of the form for you to complete your entry.

SDL Property Auctions only collects basic personal data about you which does not include any special types of information or location-based information. SDL Property Auctions is a trading name of SDL Auctions Limited.

We collect basic contact details from you so that we can respond to your enquiry. We process your data in this way based on our legitimate business interests in promoting our services to you, further to you indicating your interest. All the personal data we process is processed by our staff in the UK. You have the right to object to processing of your personal data at any time. To do this, please contact dataprotection@sdlauctions.co.uk.

Your submitted data will not be shared outside of SDL Property Auctions, subject to our Privacy Policy which you may find on our website.

We will store your data for six years, after which it will be securely destroyed. If you would no longer like us to process your data at any time, you have the right to object to processing of your data. Please contact dataprotection@sdlauctions.co.uk.

You have the right to object to the processing of your data. You also have the right to request access to your data at any time. You have the right to rectification and/or erasure of personal data or restriction of processing. If you wish to raise a complaint on how we have handled your personal data, you can contact us to have the matter investigated at dataprotection@sdlauctions.co.uk. If you are not satisfied with our response or believe we are processing your personal data not in accordance with the law, you can complain to the Information Commissioner’s Office https://ico.org.uk.

By submitting this enquiry form, you acknowledge that you have read and understood the above privacy notice and consent to its terms.