Grow with Us

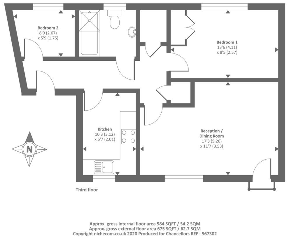
Flat 53 Thorney House, Reading, Berkshire, RG2 0GZ

  • Conditional Online Auction Sale
  • Guide Price * : £160,000 Plus fees

Loading the bidding panel...

For sale by Conditional Online Auction.
On behalf of Chancellors - Reading Sales

  • Purpose Built Apartment
  • Modern Interior
  • Close to local amenities on Kennet Island
  • Regular bus routes to Reading town centre
  • Council Tax Band: C
  • EPC Rating: B

Property Description

For sale by Conditional Online Auction.
On behalf of Chancellors - Reading Sales

DRAFT DETAILS - Awaiting vendor approval -

Two bedroom purpose built apartment situated in Kennet Island benefiting from an allocating parking space. Viewing Advised.

Close to local amenities with regular bus routes to Reading town centre.

Leasehold Length of lease: 100 years from 15 May 2007
Current ground rent: TBC
Ground rent review period: TBC
Current service charge: TBC
Service charge review period: TBC

This information should be clarified in the legal pack and we’ll update the information above when we receive it.
Note: Please be advised that whilst our partner agent has conducted an inspection, the auctioneers have not personally inspected the property. Prospective buyers are advised to make a viewing enquiry and any other necessary independent enquiries before placing their bid, as this will be binding.

Tenure: Leasehold

EPC Rating: B

Terms:
Auction Details:

The sale of this property will take place on the stated date by way of Timed Auction and is being sold as Conditional with Reservation Fee (England and Wales).

Contracts of sale will not be immediately exchanged. As the successful buyer, you will enter into a 40 business-day exclusivity agreement with the seller, in which to exchange contracts and complete. Please refer to our Auction Conduct Guide for further information on our auction types and sale methods.

All sales are subject to SDL Property Auctions’ Buyers Terms.

Auction Fees:

The following non- refundable auctioneers fee applies:

• Reservation Fee of 4.8% of the purchase price for properties sold for up to £250,000, or 3.6% of the purchase price for properties sold for over £250,000 (in all cases, subject to a minimum of £6,000 inc. VAT). For worked examples please refer to the Auction Conduct Guide.

The Reservation Fee does not contribute to the purchase price and will be considered as part of the chargeable consideration for the property in the calculation of stamp duty liability.

There may be additional fees listed in the Special Conditions of Sale, which will be available to view within the Legal Pack. You must read the Legal Pack carefully before bidding.

Additional Information:

For full details about all auction methods and sale types please refer to the Auction Conduct Guide which can be viewed on the SDL Property Auctions’ home page.

This guide includes details on the auction registration process, your payment obligations and how to view the Legal Pack.

Guide Price & Reserve Price:

Each property sold is subject to a Reserve Price. The Reserve Price will be within + or – 10% of the Guide Price. The Guide Price is issued solely as a guide so that a buyer can consider whether or not to pursue their interest. A full definition can be found within the Buyers Terms.

Joint Agent

Chancellors



Useful links

Enquiry

Submit an enquiry and someone will be in contact shortly.

 
*  
*  
*
*
*

Privacy Notice

When you have read the below sections, the Submit button will appear at the bottom of the form for you to complete your entry.

SDL Property Auctions only collects basic personal data about you which does not include any special types of information or location-based information. SDL Property Auctions is a trading name of SDL Auctions Limited.

We collect basic contact details from you so that we can respond to your enquiry. We process your data in this way based on our legitimate business interests in promoting our services to you, further to you indicating your interest. All the personal data we process is processed by our staff in the UK. You have the right to object to processing of your personal data at any time. To do this, please contact dataprotection@sdlauctions.co.uk.

Your submitted data will not be shared outside of SDL Property Auctions, subject to our Privacy Policy which you may find on our website.

We will store your data for six years, after which it will be securely destroyed. If you would no longer like us to process your data at any time, you have the right to object to processing of your data. Please contact dataprotection@sdlauctions.co.uk.

You have the right to object to the processing of your data. You also have the right to request access to your data at any time. You have the right to rectification and/or erasure of personal data or restriction of processing. If you wish to raise a complaint on how we have handled your personal data, you can contact us to have the matter investigated at dataprotection@sdlauctions.co.uk. If you are not satisfied with our response or believe we are processing your personal data not in accordance with the law, you can complain to the Information Commissioner’s Office https://ico.org.uk.

By submitting this enquiry form, you acknowledge that you have read and understood the above privacy notice and consent to its terms.