Rory Mack

446 Welford Road, Leicester, Leicestershire, LE2 6EL

  • Unconditional Online Auction Sale
  • Guide Price * : £350,000 Plus fees

Loading the bidding panel...

For sale by Unconditional Online Auction.
On behalf of Phillips George

  • Council Tax Band: D
  • Detached Bungalow
  • 3 Bedroom and 2 Reception Rooms
  • Planning Granted For Large Extensions
  • Highly Desirable Location
  • Vacant Possession

Property Description

For sale by Unconditional Online Auction.
On behalf of Phillips George

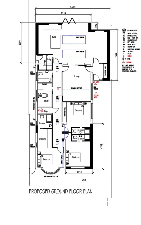
A detached bungalow standing on a large plot with planning permission for extension / development.

Situated in a highly desirable location on Welford Road the property is well placed for a wide range of amenities locally and on Queens Road along with excellent transport links in and out of the City.

Currently the bungalow offers 3 bedrooms, Lounge, Kitchen, Dining Room and family bathroom. Large gardens, ample parking and 34ft garage.

Planning Permission has been granted for front, side and rear extensions which would then offer 3-4 bedrooms, 3 En-Suite bathrooms, Family Bathroom, Lounge and Stunning Living Kitchen with Bi-Fold doors to garden.

Planning Ref- OTG9056 - full details are available on Leicester City Council Website.

Internal viewing highly recommended.

Offered freehold and with vacant possession.

Reception Hallway With parquet Oak floor, hive thermostat, radiator. The hallway also has a walk in cloakroom which houses the boiler.
Lounge(4.24m x 3.63m) With Oak flooring, fireplace, coving to the ceiling, radiator and patio doors to the rear garden.
Dining Room (4.11m x 3.4m) With French doors to the rear garden, radiator and window to the rear elevation.
Breakfast Kitchen (3.28m x 3.12m) Comprising base and wall mounted units with Oak work surfaces and under unit lighting, breakfast bar, sink unit with drainer, built in appliances to include dishwasher, fridge, freezer, grill, oven, gas hob and extractor hood and radiator.
Utility Room Base units, sink unit, plumbing for washing machine, extractor fan, tiled floor, door to side entry, door to the rear garden and window to the side.
Toilet / WC Being fully tiled and with low flush w.c., spotlights and tiled floor.
Bedroom One (4.09m x 3.63m) With a selection of built in wardrobes and drawers, Oak floor, picture rail, window to the side elevation and radiator.
BedroomTwo (4.11m x 3.4m) With bay window to the front elevation, Oak floor, fireplace, coving to the ceiling and radiator.
Bedroom Three (3.58m x 2.13m) With a selection of wardrobes, drawers and cupboards, Oak floor, radiator and window to the side elevation.
Shower Room Being fully tiled and comprising double walk in shower cubicle, wash hand basin, bidet, low flush w.c., heated towel rail, tiled floor and window to the side elevation.
Tandem Garage 33ft 11 x 7ft 11 (10.34m x 2.41m) With multi door to the front (either single opening or up and over garage door), light, power, ample storage, two separate doors to the rear garden and 3 windows.
Outside The front of the property is block paved to provide ample off road parking. The rear garden is larger than average and is mainly laid to lawn with a patio area, mature flower beds, garden pond, shed and a hedged and fenced surround. Overall the garden is mature throughout and has been very well maintained.
Mobile Phone Coverage O2, EE, Three and Vodafone are available in this location.
Satellite and Cable TV Availability BT, Sky and Virgin are available in this location.
Broadband (estimated speeds) Standard 10 mbps. Superfast 64 mbps. Ultrafast 1000 mbps.
Construction Material Cavity wall as built insulated (assumed). Information taken from EPC.
Draft Sales Details These sales details are awaiting vendor approval.

Tenure: Freehold

EPC Rating: D

Terms:
Auction Details:

The sale of this property will take place on the stated date by way of Timed Auction and is being sold under an Unconditional sale type.

Binding contracts of sale will be exchanged at the point of sale.

All sales are subject to SDL Property Auctions Buyers Terms. Properties located in Scotland will be subject to applicable Scottish law.

Auction Deposit and Fees:

The following deposits and non- refundable auctioneers fees apply:

• 5% deposit (subject to a minimum of £5,000)

• Buyers Fee of 4.8% of the purchase price (subject to a minimum of £6,000 inc. VAT). 

The Buyers Fee does not contribute to the purchase price, however it will be taken into account when calculating the Stamp Duty Land Tax for the property (known as Land and Buildings Transaction Tax for properties located in Scotland), because it forms part of the chargeable consideration for the property.

There may be additional fees listed in the Special Conditions of Sale, which will be available to view within the Legal Pack. You must read the Legal Pack carefully before bidding.

Additional Information:

For full details about all auction methods and sale types please refer to the Auction Conduct Guide which can be viewed on the SDL Property Auctions home page.

This guide includes details on the auction registration process, your payment obligations and how to view the Legal Pack (and any applicable Home Report for residential Scottish properties).

Guide Price & Reserve Price:

Each property sold is subject to a Reserve Price. The Reserve Price will be within + or - 10% of the Guide Price. The Guide Price is issued solely as a guide so that a buyer can consider whether or not to pursue their interest. A full definition can be found within the Buyers Terms.

Useful links

Enquiry

Submit an enquiry and someone will be in contact shortly.

 
*  
*  
*
*
*

Privacy Notice

When you have read the below sections, the Submit button will appear at the bottom of the form for you to complete your entry.

SDL Property Auctions only collects basic personal data about you which does not include any special types of information or location-based information. SDL Property Auctions is a trading name of SDL Auctions Limited.

We collect basic contact details from you so that we can respond to your enquiry. We process your data in this way based on our legitimate business interests in promoting our services to you, further to you indicating your interest. All the personal data we process is processed by our staff in the UK. You have the right to object to processing of your personal data at any time. To do this, please contact dataprotection@sdlauctions.co.uk.

Your submitted data will not be shared outside of SDL Property Auctions, subject to our Privacy Policy which you may find on our website.

We will store your data for six years, after which it will be securely destroyed. If you would no longer like us to process your data at any time, you have the right to object to processing of your data. Please contact dataprotection@sdlauctions.co.uk.

You have the right to object to the processing of your data. You also have the right to request access to your data at any time. You have the right to rectification and/or erasure of personal data or restriction of processing. If you wish to raise a complaint on how we have handled your personal data, you can contact us to have the matter investigated at dataprotection@sdlauctions.co.uk. If you are not satisfied with our response or believe we are processing your personal data not in accordance with the law, you can complain to the Information Commissioner’s Office https://ico.org.uk.

By submitting this enquiry form, you acknowledge that you have read and understood the above privacy notice and consent to its terms.

Map